spaces: suite 203a

Kimball Arts Center leases second floor work spaces. We have options available for any sized business.

features + amenities

Size Range: 653 rentable SF

Rent: $1,650.00/mo. NNN + $570/mo in estimated pass throughs for real estate taxes, insurance, CAM and utilities. (includes heat, AC, water and internet)

Lease Term: 1yr, 3 yr, 5yr. Lease incentives available.

Space Features: Fully renovated second floor loft space with direct views of the 606 Trail. Custom build out with designer kitchen, open workspace and private office. 12’ timber ceilings, exposed brick, new lighting and electric. Full HVAC. Refinished wood floors. Beautiful and inspiring workspace!

Timing: March 1st, 2026.

Utilities: Utility pass through to include electric, gas, water, internet.

Tenant Buildout Options: Custom build out completed in 2022, turn key and ready for move in!

Building Amenities: Dedicated parking available. Fully renovated common area lobby and bathrooms. New building power and HVAC. Direct access to the 606 Trail. Dayglow Coffee onsite. Dynamic creative community in the building.

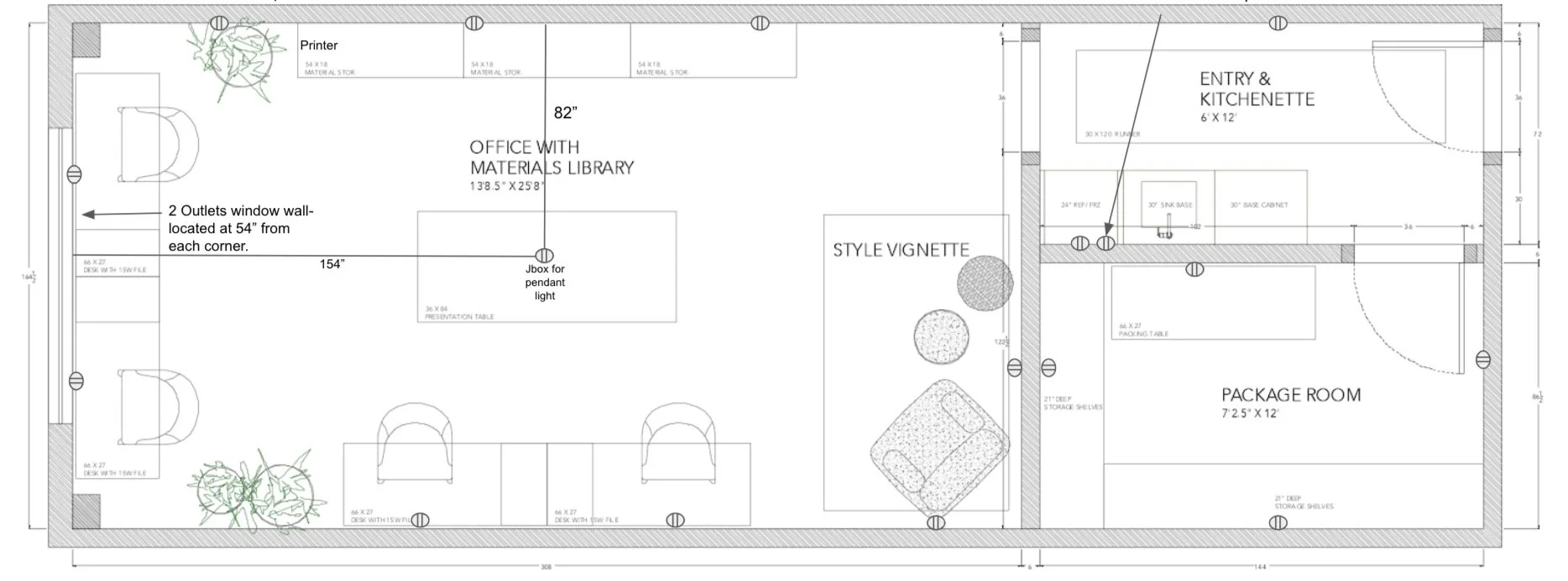
floor plan

 

Leasing info

Stocking Urban

Nicholas Stocking 312-208-8191